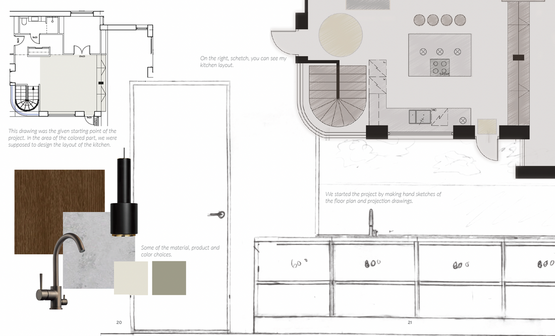
This fictional school project was my very first kitchen design, from floor plan to 3D images and technical drawings.
We started this project autumn 2023 in Sketchup Pro and in January 2024 we finished the project in AutoCad with technical drawings - floor plan, projection drawings and detail drawings.








