Click on a picture to open up the whole project

From butter churn to wall lamp, Autumn 2023
The given task was to design and manufacture complements to a lamp holder so that the result would become a unique lamp. The lamp had to consist of existing wooden...
From butter churn to wall lamp, Autumn 2023
The given task was to design and manufacture complements to a lamp holder so that the result would become a unique lamp. The lamp had to consist of existing wooden...

From pattern design to final product, Autumn 2023
After determining my target group, making a mood board and color map, deciding which products to make and sketching different pattern ideas, I was finally ready to make the pattern...
From pattern design to final product, Autumn 2023
After determining my target group, making a mood board and color map, deciding which products to make and sketching different pattern ideas, I was finally ready to make the pattern...

Bathroom Design, Autumn 2023
This fictional school project was my very first bathroom design. The main focus in this project was to build the bathroom in 3D in Sketchup Pro. The project also included...
Bathroom Design, Autumn 2023
This fictional school project was my very first bathroom design. The main focus in this project was to build the bathroom in 3D in Sketchup Pro. The project also included...

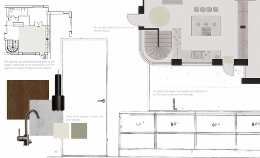
Kitchen Design, Autumn 2023
This fictional school project was my very first kitchen design, from floor plan to 3D images and technical drawings. We started this project autumn 2023 in Sketchup Pro and in...
Kitchen Design, Autumn 2023
This fictional school project was my very first kitchen design, from floor plan to 3D images and technical drawings. We started this project autumn 2023 in Sketchup Pro and in...

Headboard Design, Spring 2023
During the course “Work as studies” we were given the possibility to learn a new knowledge of our own choice. The main ideas with the course was to learn something...
Headboard Design, Spring 2023
During the course “Work as studies” we were given the possibility to learn a new knowledge of our own choice. The main ideas with the course was to learn something...

Pop-up store design, Spring 2023
In this assignment we would plan a fictious pop-up store of 9-12 m2 that would stand in a shopping mall for a period of one month. We would, among...
Pop-up store design, Spring 2023
In this assignment we would plan a fictious pop-up store of 9-12 m2 that would stand in a shopping mall for a period of one month. We would, among...